
| 매물번호 | 64078 | 계약여부 | 계약가능 |
|---|---|---|---|
| 제목 | 펜션운영권도 있으며, 황토방 있는 전원주택매매 | ||
| 매매가 | 18억 | ||
| 융자 | 0만원 | 입주가능일 | 협의 |
| 소재지 | 경기 양평군 서종면 | ||
|---|---|---|---|
| 거래종류 | 매매 | ||
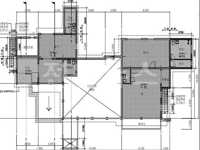
| 대지면적 | 1475㎡ (446평) | 건축면적 | 370㎡ (112평) |
| 건축구조 | 목조주택 | 난방연료 | LPG |
| 준공년/월 | 2005년 7월 25일 | 주차공간 | 5대 |
| 지상층/지하층 | 2/0층 | 방수/욕실수 | 3/4 |
| 상세주소 | 경기 양평군 서종면 문호리 | ||
|---|---|---|---|
| 매매 | 180,000 만원 (18억원) 평당 403만원 | ||
| 총면적 | 토지 1475㎡ (446.2평), 건물 370.49㎡ (112.02평) | ||
| 지목 / 용도지역 | 대 , 보전관리 | ||
| 도로현황 | 사도,현황도로 , 시멘트포장 | ||
| 준공일 | 2005-07-25 | 층수 | 지상 2층 |
| 방향(거실창 기준) | 남서 | 건축구조 | 목조, 1층 일부 9평 경량철골조/ 별채 황토방(벽돌구조) |
| 주택 층별정보 | 1층201.42㎡,60.9평 2층161.39㎡,48.8평 | ||
|---|---|---|---|
| 부속건축물 현황 | 별채 (황토방), 7.68㎡, 2.32평 | ||
| 방 | 1 , 2 | 토목 | 면석 |
| 거실 | 1 , 2 | 오수처리 | 정화조 |
| 주방 | 1 , 0 | 수도시설 | 개별지하수 |
| 욕실 | 2 , 2 | 전기시설 | 일반,상업용 |
| 다용도실(창고) | 1 , 1 | 난방 | 기타, 전기온수보일러 |
| 주차정보 | 야외 | 보안시설 | 무 |
| 총 주차대수 | 3 | 개발형태 | 개별형 |
| 외장재 | 목재 | 지붕재 | 징크 |
|---|---|---|---|
| 내장재 | 목재 | 바닥재 | 원목마루 |
| 창호 | 단창 | 옵션 | 에어컨,시스템냉난방기,황토방 , 시스템 냉난방기5대, 일반에어컨2대 |
- 단독필지 대 446.2평
- 남서향으로 트인 산세 조망
- 2005년 준공, 일반목구조&경량철골조, 0/2층
주택 109.7평, 별채 황토방(벽돌구조) 약 2.3평
소유자 실거주 주택(예전에 소유자 펜션 운영했었음)
전기온수 보일러, 개별지하수, 개별정화조(10톤), 상업용전기(74kw)
2026년 군에서 상수도연결 예산 잡혀 있다고 하심
- 1층(60.9평): 방1, 거실, 주방, 욕실2, 보일러실, 창고
2층(48.8평): 방2, 거실2, 욕실2, 다용도실1
별채(황토방): 약 2.3평
2층은 외부계단으로 진입가능하며,
2층에 바베큐장 있으며, 비가림박 설치함
- 옵션: 시스템 냉난방기5대, 일반 에어컨2대등 계약시 협의 가능
- 잔디마당, 디딤석, 정원수, 조경석, 석재조형물,미니 연못
경계는 철재 펜스 및 대문 설치
- 4~5m 시멘트포장, 사도,현황도로
- 주변이 산세로 둘러 쌓여 있음
왕복 2차선 및 버스 정류장 약 3km거리
서종면 사무소 및 생활권 약 6km거리
양수역 및 생활권 약 9.5km거리
| 등록정보 | 전원뉴스부동산 대표자 : 박상윤 |
|---|---|
| 대표전화 : 031-773-3944 HP : -- Mail : ok5050dream@hanmail.net |